JERNALDEREN

Seniorbofællesskab / etagebyggeri 2020

Skitseforslag og dispositionsforslag udarbejdet i 2020. Jernalderen består 71 seniorboliger +50 med tilhørende fællesarealer på i alt 7.541 m² boligareal og 886 m² fællesarealer. Adgang til boligerne foregår via et centralrum som en stor atriumlounge i 3 etagers højde. Jernalderen er beliggende i den nye bydel Jernstøberiet i Holbæk. Projektet stod klar til indflytning i 2022.
https://www.karltornfeldt.dk/files/gimgs/th-76_JA_05.png
 

Isometri

https://www.karltornfeldt.dk/files/gimgs/th-76_JER_35.png
 

Beliggenhed

https://www.karltornfeldt.dk/files/gimgs/th-76_JER_33.png
 

Siteplan

https://www.karltornfeldt.dk/files/gimgs/th-76_JER_34.png
 

Etageplan stue

https://www.karltornfeldt.dk/files/gimgs/th-76_JA_14.png
 

Fællesområde stueplan

https://www.karltornfeldt.dk/files/gimgs/th-76_JA_17.png
 

Visualisering af fælleshuset

https://www.karltornfeldt.dk/files/gimgs/th-76_JA_01.png
 

Etageplan 1. sal

https://www.karltornfeldt.dk/files/gimgs/th-76_JA_13.png
 

Fællesområde 1. sal

https://www.karltornfeldt.dk/files/gimgs/th-76_JA_15.png
 

Facader mod vest og øst

https://www.karltornfeldt.dk/files/gimgs/th-76_JER_36.png
 

Etageplan 2. sal

https://www.karltornfeldt.dk/files/gimgs/th-76_JA_12.png
 

Fællesområde 2. sal

https://www.karltornfeldt.dk/files/gimgs/th-76_JA_16.png
 

Visualisering af tagterrasse

https://www.karltornfeldt.dk/files/gimgs/th-76_JA_07.png
 

Etageplan 3. sal

https://www.karltornfeldt.dk/files/gimgs/th-76_JA_11.png
 

Fællesområde 3. sal

https://www.karltornfeldt.dk/files/gimgs/th-76_JA_18.png
 

Facader mod syd og nord

https://www.karltornfeldt.dk/files/gimgs/th-76_JER_37_v2.png
 

Visualisering af opholdsrum

https://www.karltornfeldt.dk/files/gimgs/th-76_JA_02.png
 

Visualisering af opholdsrum

https://www.karltornfeldt.dk/files/gimgs/th-76_JA_03.png
 

Kælderetage

https://www.karltornfeldt.dk/files/gimgs/th-76_JA_10.png
 
 
https://www.karltornfeldt.dk/files/gimgs/th-76_JA_19.png
 

Boligtype A

https://www.karltornfeldt.dk/files/gimgs/th-76_JA_25.png
 

Boligtype D

https://www.karltornfeldt.dk/files/gimgs/th-76_JA_26.png
 

Boligtype F

https://www.karltornfeldt.dk/files/gimgs/th-76_JA_27.png
 

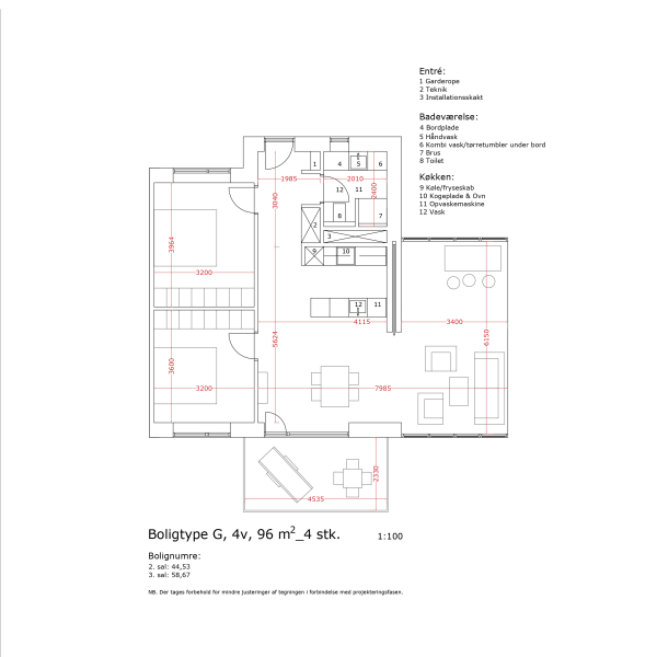
Boligtype G

https://www.karltornfeldt.dk/files/gimgs/th-76_JER_28.png
 

Visualisering af gårdmiljø

https://www.karltornfeldt.dk/files/gimgs/th-76_JA_06.png