Kulturværksted

Bacheloropgave 2007


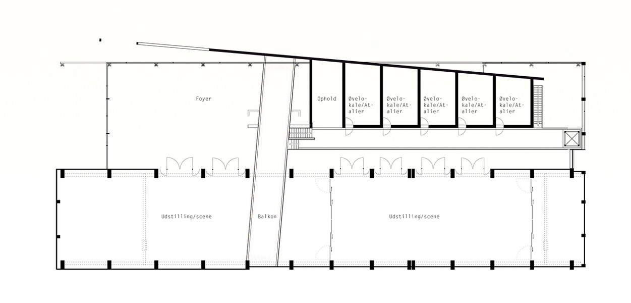
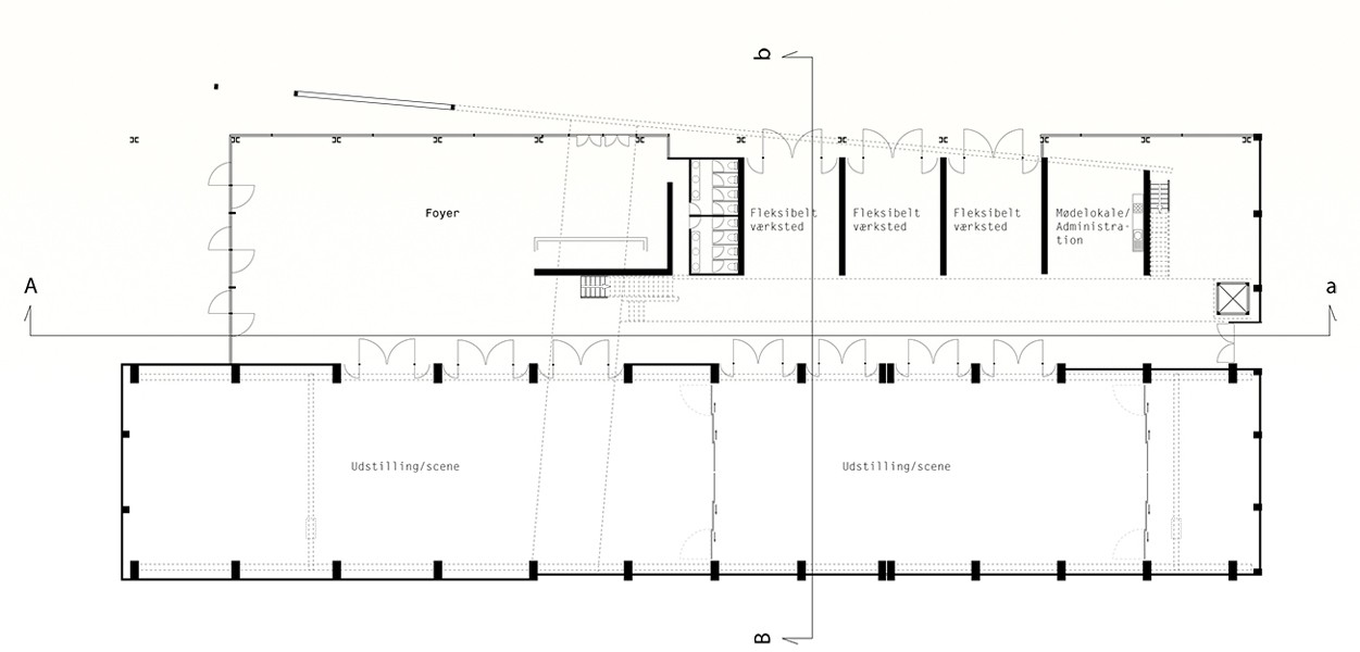
Bachelorprojektet tager afsæt i en af B&W´s gamle bygninger på Refshaleøen i København. Den oprindelige bygning, en tvillingehal, er delvist nedbrudt og derefter opbygget omkring mødet mellem den gamle og en ny struktur. Den tilføjede struktur fungerer som et kreativt værksted med øvelokaler og atelierer. Her er desuden indgang, foyer, køkken, toilet og administration. Den bibeholdte hal fungerer som Scene og udstillingshal.
https://www.karltornfeldt.dk/files/gimgs/th-26_KUL_VIS01.jpg
 
 
https://www.karltornfeldt.dk/files/gimgs/th-26_KUL_VIS02_v3.jpg
 

Exteriør

https://www.karltornfeldt.dk/files/gimgs/th-26_KUL_VIS03.jpg
 

Interiør

https://www.karltornfeldt.dk/files/gimgs/th-26_KUL_VIS04.jpg
 

Interiør

https://www.karltornfeldt.dk/files/gimgs/th-26_KUL_VIS05.jpg
 

Bygningselementer

https://www.karltornfeldt.dk/files/gimgs/th-26_KUL_DIAGRAM.jpg
 

Refshaleøen

https://www.karltornfeldt.dk/files/gimgs/th-26_KUL_PLAN01.jpg
 

Situationsplan

https://www.karltornfeldt.dk/files/gimgs/th-26_KUL_PLAN02.jpg
 

Plan 0

https://www.karltornfeldt.dk/files/gimgs/th-26_KUL_PLAN03.jpg
 

Plan 1

https://www.karltornfeldt.dk/files/gimgs/th-26_KUL_PLAN04.jpg
 

Snit BB

https://www.karltornfeldt.dk/files/gimgs/th-26_KUL_SNITBB.jpg
 

Snit AA

https://www.karltornfeldt.dk/files/gimgs/th-26_KUL_SNITAA.jpg
 

Opstalt Syd

https://www.karltornfeldt.dk/files/gimgs/th-26_KUL_OPSTALTS.jpg
 

Opstalt Nord

https://www.karltornfeldt.dk/files/gimgs/th-26_KUL_OPSTALTN.jpg
 

Opstalt Øst

https://www.karltornfeldt.dk/files/gimgs/th-26_KUL_OPSTALTO.jpg